top of page
PORTFOLIO
OBČANSKÉ STAVBY
BYTOVÉ A RODINNÉ DOMY
INTERIÉRY
SOUTĚŽE
ATELIÉR
KONTAKT
DALŠÍ
Use tab to navigate through the menu items.
BYTOVÉ A RODINNÉ DOMY
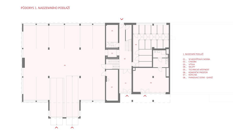
BYTOVÝ DŮM JUNDROVSKÁ, BRNO
2022
novostavba
investor: BD Jundrovská s.r.o.
bottom of page